典型项目

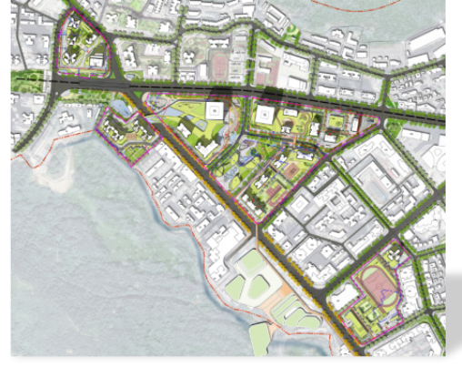
田心工业区片区重点城市更新单元

拆除重建用地面积:155653平方米(规划结合现状情况进行了优化,调整为159190平方米)

更新方向:商业、办公及居住等功能


虽然项目位于盐田区的门户位置,但现状产业低端、土地利用效率不高、配套设施严重不足、安全隐患问题突出,亟需通过城市更新解决一系列问题。同时,该更新单元作为沙头角深港国际旅游消费合作区的核心项目,对于盐田区完善城市功能、提升人居环境、优化配套设施、助力产业兴盐具有重要的意义。

图片1.png

▶ 田心工业区片区重点城市更新单元效果图

图片2.png

▶ 田心工业区片区重点城市更新单元规划图

更新整备人

主页

发展历程